Spatial and Material Memory
Dominion
Philippines | Mixed – use | 2018
Dominion was remotely designed in Australia for a North American client and realised through construction in the Philippines, reflecting a cross-continental collaboration.
Originally a 1950s family home, the project reinterprets the site as a mixed-use building. Although the original structure was demolished due to structural failure, its spatial and material memory were carefully retained and reimagined in the new design.
Concept
Material Memory
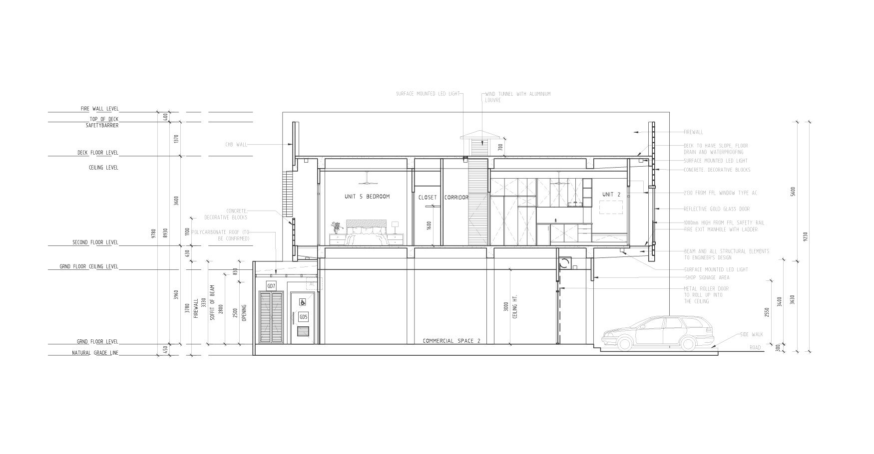
Breeze blocks once embedded within the original home are reinterpreted as a new façade screen, carrying the material memory of the existing house into its next life.
The screen moderates harsh western sun and heavy rainfall while allowing natural ventilation, filtered views, and privacy to the balconies.
Salvaged timber doors, floorboards, and window grilles are carefully refurbished and reintegrated into the project, extending the life and narrative of the original materials.
Spatial Memory
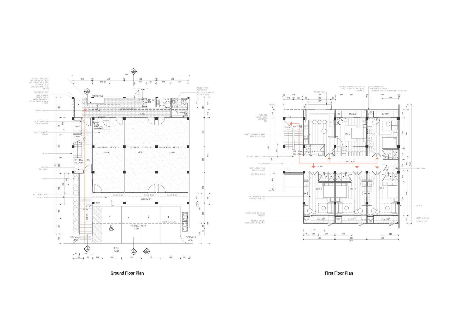
Beyond material continuity, the rhythm of openings and proportions within the elevations subtly recalls the spatial order of the original home.
The original tripartite plan and primary entry are retained, with the central hallway continuing as the organising spine of the house — preserving its familiar sequence, procession, and sense of orientation through the space.
Design Development
Construction
Salvaged timber and galvanised iron roofing from the original house were repurposed as construction formwork and site hoardings, maximising the reuse of existing on-site materials and reducing construction waste.






